Apartament cu 4 camere langa parc | garaj si terasa


  • 4 Camere
  • 3 Bai
  • 125 mp construiti
Descriere

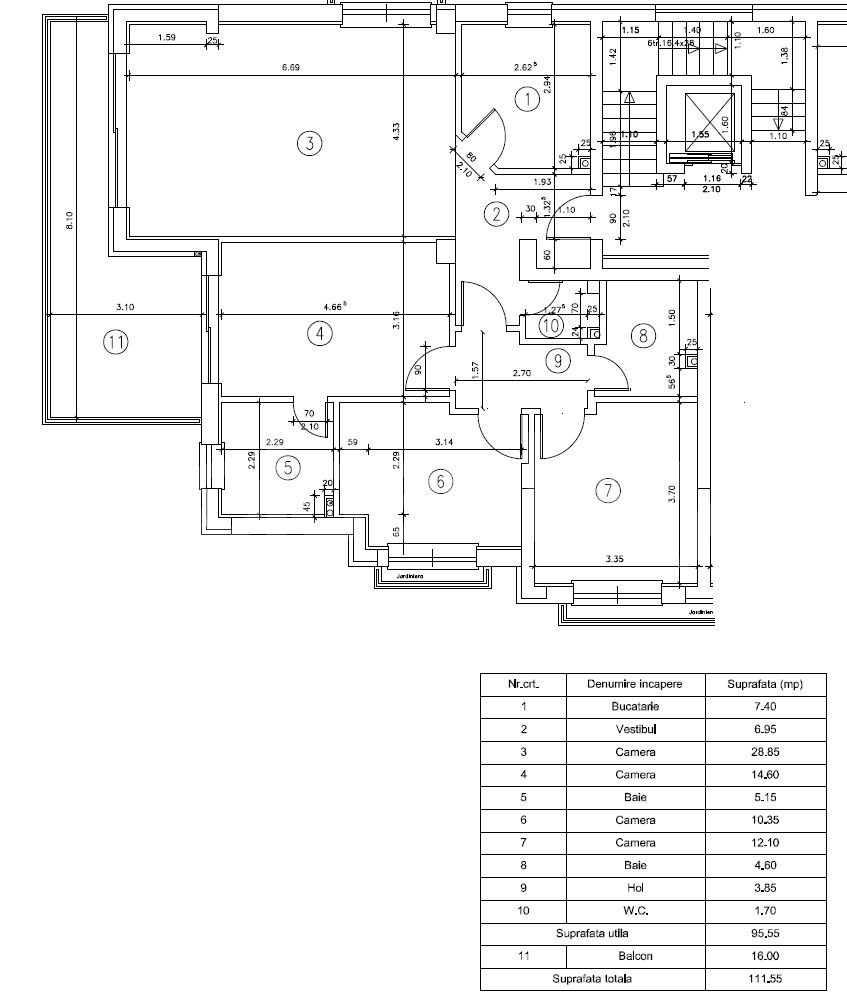
Chiar langa Parcul Herastrau, pe o strada linistita plina de verdeata, acest apartament de 4 camere se afla la etajul 2 al unui imobil S+P+5.
Are o suprafata construita de 125mp din care 96mp utili si 16mp terasa.
Este compus din living spatios cu zona de dining , terasa, bucatarie inchisa, complet echipata, dormitor matrimonial cu baie proprie si 2 dormitoare secundare care impart o baie.
Este complet mobilat si utilat si dispune de 1 loc de paracre subteran.
Zona linistita, serviciile si calitatea echiparii sunt cateva din avantajele acestei proprietati.

Floor Plans
€ 485.000
  • 1554561, Herastrau

    Apartament cu 4 camere langa parc | garaj si terasa

Similar Properties


€ 599.000
  • 4 Camere
  • 2 Bai
  • 215 mp

Acest apartament modern cu 4 camere se afla langa Parcul Herastrau, aproape de Hotel Ramada, la etajul 1 al unui imobil finalizat in 2007. Are o suprafata construita de 215mp dintre care 163mp utili... Citeste mai mult

€ 3493/luna+TVA
  • 5 Camere
  • 2 Bai
  • 0 mp

Situat in apropierea Parcului Herastrau, la 15 minute de condus de centrul orasului si la 10 minute de metrou Aurel Vlaicu, acest spatiu este la etajul 3 al unui imobil S+P+7 finalizat in... Citeste mai mult

€ 2300/luna
  • 4 Camere
  • 4 Bai
  • 0 mp

La cativa pasi de Parcul Herastrau si Le Club - Sat Francez, acest duplex penthouse se desfasoara la ultimele 2 niveluri ale unui imobil S+P+5+M finalizat in 2006. Suprafata totala este de 220mp din... Citeste mai mult